Застройщик АО "Ишимагрострой" предлагает приобрести квартиры в ЧИСТОВОЙ ОТДЕЛКЕ в жилом доме по адресу: Тюменская область, город Ишим, ул. Курганская, дом 83.
Жилой дом расположен в тихом экологически чистом районе города Ишима. Рядом расположена развитая инфраструктура: школа, детский сад, парк отдыха "Берёзовая роща", "умная" спортивная площадка, театр, модельная библиотека, аптеки, магазины, почта. Жилой дом - шестиэтажный. В доме 4 подъезда. Всего - 119 квартир, из них однокомнатные, двухкомнатные и трехкомнатные. В каждом подъезде имеется лифт, грузоподъёмностью 1000 килограмм, на первых этажах расположены колясочные. На первом этаже жилого дома расположены нежилые помещения - магазины.
Наружные и внутренние стены дома выполнены из силикатного кирпича. Толщина наружных стен - 680 мм. Высота потолков в жилых помещениях в чистоте - 2,7 метров. Кровля - плоская с организованным внутренним водостоком и выпуском на отмостку.
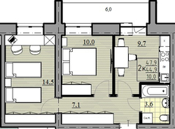
Застройщик реализует 2 - комнатную квартиру, которая включает в себя: кухню, спальню, гостиную, прихожую, санузел совмещенный, лоджию. Квартира выполнена в чистовой отделке. Чистовая отделка включает в себя:
- Пластиковые окна из ПВХ профиля белого цвета с двухкамерным стеклопакетом (высота 1,57, ширина 1,48 ), створки окон оснащены замками безопасности;
- Лоджия - застекленная;
- Пол - линолеум;
- Стены - окрашены водоэмульсионной краской;
- Потолок - натяжной с закладными под гардину;
- Межкомнатные двери;
- Стены в санузле - керамическая плитка на всю высоту помещения;
- Пол в санузле - керамогранитная плитка;
- Сантехническое оборудование в санузле (ванна, раковина, унитаз, смеситель, водонагреватель, полотенцесушитель;
- Индивидуальные счетчики воды и электрической энергии;
- Входные стальные двери производства России;
- Интернет;
- Домофон;
- Пожарная сигнализация;
- Комплексное благоустройство территории (детская площадка, автостоянка).
Способы оплаты:
- наличные
- ипотека
- сертификат "Материнский капитал"
- сертификат "Молодая семья"
- другие виды государственной поддержки, которыми можно воспользоваться при покупке жилья
- рассрочка
Приобретение квартиры осуществляется по договору купли-продажи после ввода жилого дома в эксплуатацию!
Наши партнеры по ипотечному кредитованию: ПАО «Сбербанк России», АО «Газпромбанк», Банк ВТБ (ПАО), АО "Россельхозбанк" , АО Альфа-банк и другие банки.
По вопросам приобретения обращаться АО «Ишимагрострой»: г. Ишим, ул. Республики, 95. Телефоны: 8(34551) 6-64-01, 8-922-042-10-98, e-mail: 6-64-01@mail.ru
Режим работы: понедельник-пятница с 08.00-17.00 часов, суббота и воскресенье - выходной, перерыв на обед: 12.00-13.00
